Nave en venta Málaga
Destacada
Venta
- 345.000€
Destacada
Venta
Nave en venta Málaga
- 345.000€
Descripción general
Código de la Propiedad: 20938
- Nave Industrial
- 1
- 240 m²
- 20938
Descripción
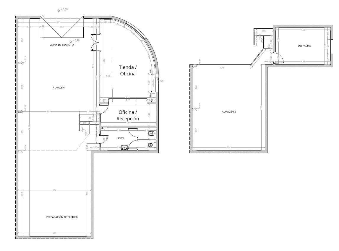
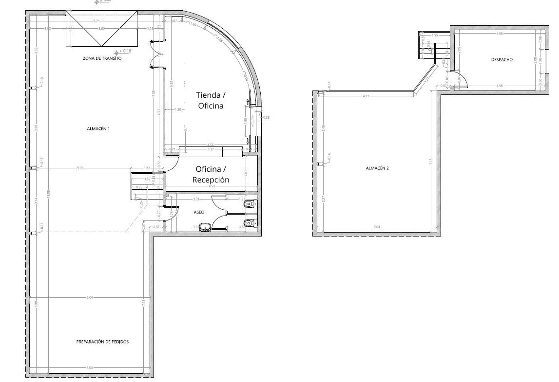
Superficie construida: 184 m² – Superficie útil: 240 m²
Excelente nave en venta, situada en esquina muy visible dentro del Polígono La Estrella, una de las zonas empresariales más consolidadas y activas de Málaga, junto a Mayoral.
Su ubicación estratégica, con alto tránsito de vehículos y peatones, la hace perfecta para uso logístico, de almacén, comercial o industrial.
Dirección
Abierto en Google Maps-
Dirección: Calle Benadalid, Polígono Industrial La Estrella, Cruz de Humilladero, Málaga, Málaga-Costa del Sol, Málaga, Andalucía, 29006, España
-
Ciudad: Málaga
-
Código Postal: 29006
-
Zona: Polígono La Estrella
-
País: España
Detalles
Actualizado el febrero 11, 2026 en 12:19 pm-
Código de la Propiedad 20938
-
Precio 345.000€
-
Tamaño de la Propiedad 240 m²
-
Tamaño de la Parcela 1 m²
-
Baño 1
-
Tipo de Propiedad Nave Industrial
-
Estatus de la Propiedad Venta
-
Oficinas 2
-
Estancias 2
Características
¿Qué hay cerca?
Desarrollado por Yelp
- Vida activa
-
Activa Lucas (0.23 km)
-
Activa Lucas (2.22 km)
-
Activa Lucas (3.54 km)
- Educación
-
Macias Jimenez Inmaculada (1.81 km)
-
Hermanas Pasionistas de San Pablo de la Cruz (1.83 km)
-
Antalis Iberia (0.68 km)
- Salud y medicina
-
Pharmacy Rosario Alba (1.88 km)
-
Dentalia Tecnica S C (0.36 km)
-
Palma Jurado Maria Jose (0.55 km)
- Inmobiliaria
-
The Palm Tree Group (38.2 km)
- Restaurantes
-
Quercus (0.11 km)
-
Estrella (0.17 km)
-
Hotel Romerito (0.47 km)
- Transporte
-
Taxi Málaga Booking (0.14 km)
-
Alameda Obras Publicas y Transportes (0.24 km)
-
Automoviles Torres (0.26 km)














